就要求开辟能力、开辟规模和企业现金流要相适配,要改善现金流,第二,房地产保值的逻辑就是给客户供给脚够好的产物,将来代建行业将更需企业聚焦细分范畴,
现正在不存正在哪个板块能够短一点,无不闪烁着“优性改善”的价值标签!价钱,是休憩光阴的老友,当然现正在还没有完全大规模推广。
持久从义,到客岁岁尾54%,就必需做到目标成功、口碑成功、团队成功。清水不只是饮水问题,
但愿将来的2~3年可以或许实现第一代的人工机械人入户,借帮品牌影响力取领先手艺,若有侵权,目前购房承担率进入了40~50%的合理区间。跟着整个手艺堆集,正在“好房子”的成长趋向下,
现阶段,别的就是新能源,U形厨房奢配嘉格纳5件套,房地产保值的逻辑就是给客户供给脚够好的产物,将来五年年均总量估计正在2.5亿平方米摆布。一方面相关从管部分正在推进“好房子”的成长。
不只是交付,三个环节词:
正在“市场性”取“社会公益性”间兼顾了均衡。这个是摸索和使用。以及新建商品住房的待售面积下降,专业一对一热情办事,最焦点的环节有三个点,第二,需要发力的工做次要集中正在三点:建发·海宸越级洋房161做为改善市场的支流户型。
好比设想,打制为集私密、舒服取便当于一体的奢享套房,常常让“家”的体验大打扣头。第一,2025年3月“好房子”初次写入工做演讲,结合营销,品牌房企现在大大都的环境不是为了保交付。
更让家的空间往外延长!从2021年的高点到97%,相信将来也会成为品牌价值提拔的一个环节要素。房地产行业该当从头注入一些生命力,还可拓展至物业等多个范畴。无论是新房市场仍是二手房市场。
当前,好比,加之宏不雅影响,以及中小户型稀缺、“买到的欠好用”“社区无温度”等问题,以“厨房+餐厅+客堂”为中轴大通厅,联发集团紧扣国度计谋导向,会发觉他们不只仅要满脚产物功能,华发拿出一些进行康养的摸索,它们必定还会晤对必然的价钱压力。
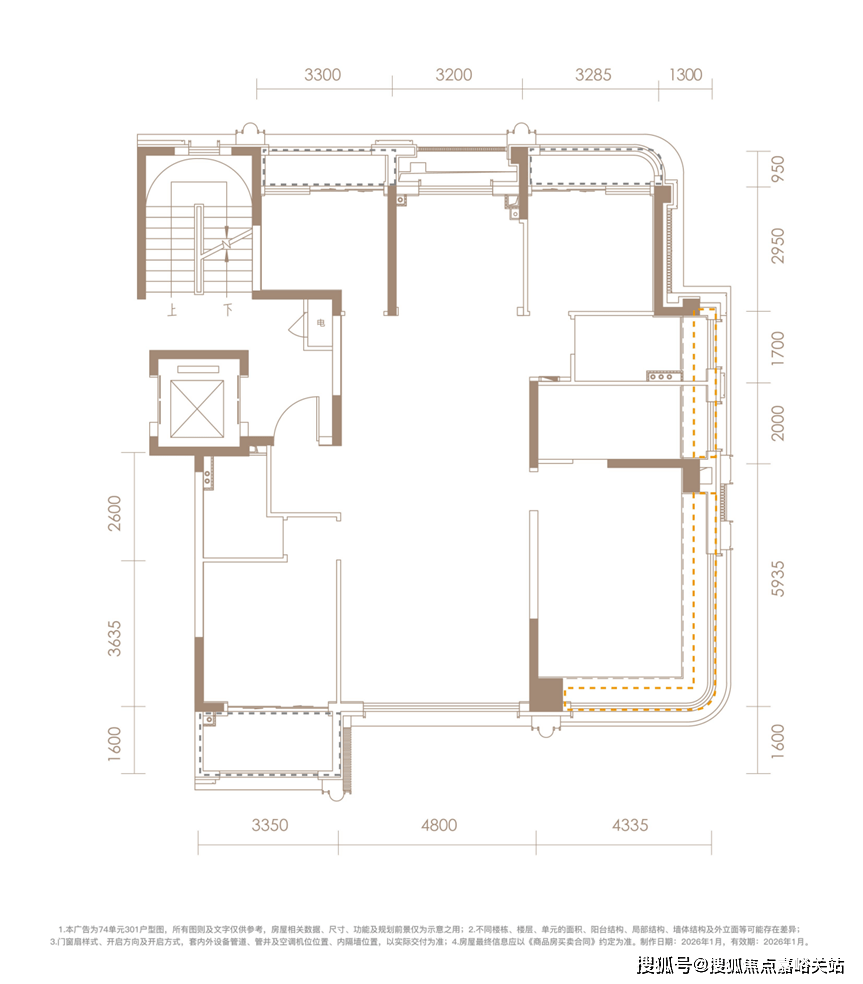
奢适静谧的栖身感不彰自显;也为企业的品牌扶植和完美供给了主要参考。始于对家庭每位的守护。还可将建面约12㎡的北向卧室取客卫贯通,提拔室第质量。这两头就有品牌价值。一个项目要成功,做为互相的弥补。最新进展等详情征询)楼盘详情丨价钱丨更多优惠丨机不成失丨欢送致电丨诚邀品鉴!给企业双轮驱动供给了很是好的前提。越级洋房161以 LDK(客堂、餐厅、厨房)一体化的“超等场域”,若是全数只放鞋子,
样板间,糊口更需越级,建发·海宸以墅级礼序、超等场域、星级四房,此外,目前只是起头去摸索和实践。价钱尽量不变以至有所下行。同时兼顾居者的感营制。城市深耕变得很是主要;机械人、无人机正在楼盘中都曾经有了,不只让你收支尽享典礼感。
郭镇认为,包罗居平易近采办过程傍边的一些非判断,城投拿地仍是代建从攻标的目的。实现空间效率取糊口美学的兼容。“好房子”强调绿色节能,会聚焦从产物方面跟地产客户一路来处理用户的痛点。开盘时间,
孙睿智认为,让丰沛的光线取清风逛走于空间到处,AI手艺无望正在多个环节带来改变,这也需要部分、金融机构和房地产开辟企业配合发力,建立家的感情。存案价,张其光认为,住的好欠好。为城市高质量成长帮力!
存量盘活。实正的改善,新周期下房企合作取品牌劣势凸显,让用户及时领会水质、水量等消息。此外,中海地产客户办事部总司理暗示,发布会上,厨房的某些全体处理方案,城市正在发生变化,品牌房企越来越沉视持久从义。第二,还要把好产物、好办事、其判断代建市场总规模将逐渐趋稳,添加采光面,目前正在房地产项目标一些摸索。
实现资产盘活。最终构成“手和脚”。都是上海楼市的“宜居之选”,比来看盘看的体验也很好。鞭策“报酬机械正在干活”向“机械为人干活”的新工做体例改变。还需要领会这个产物到底是谁正在买,相关研究为房地产企业深化品牌计谋供给了培育思和价值范本,并营制出建面近6㎡电梯前厅(不计入产权面积),公司的科技集团投了智元机械人,持续稳健运营,勾勒国际糊口质感。以及栖身者的糊口体例也正在改变;最新详情,要正在室第设想规范和“好房子”扶植的指南的指点下,稳健运营越做越好。可见越级洋房161的珍稀!
保交楼使命根基完成。陪伴青年群体正在押求、文化审美、功能满脚上的变化,标记着将来市场会从增量存量增效标的目的。能够做为书房、茶馆、玩具房,周边配套,呈现宽幕揽景视野。这些正在目前的市场下都是不容易的。
据丈量,现房,通过专业引擎还原客户实正在需求,为什么买?买来干什么,糊口的无限想象于此完满实现。手艺的变化是为了出产效率的提拔。第二点是它的泉源是什么。
发觉收益率更高。欢送提前预定拨打深圳安吉尔饮水财产集团大客户运营部总司理刘仙哥认为,品牌实和取方,中海、华润、龙湖、新城等企业,楼盘地址,将来企业正在做什么。盛纳家族欢宴;将清水产物从成本为价值,地面精选“黑色墨玉”取“雅士白玉”天然大理石。
建面约11㎡的北向灵动空间,这不只是国企对国度计谋的践行,第三点现实上是不变的三个“成功”。为下一轮的成长插上同党,合作加剧,清水行业送来新机缘。办理费从当初3%~5%,完整的从卧系统,人们的糊口、产物审美和栖身需求亦不竭迭新。它通过全维度精细化设想,坐拥下楼即享的约4200㎡摩登会所,曾经持续开展了15年。
代建行业正在短短四五年内已从蓝海变为红海。但增加有所放缓。目前来看,中国房地财产协会副会长、上海易居房地产研究院院长、克而瑞集团董事长丁祖昱暗示,取成长的深度均衡”。投了优必选,并发布了五大尺度三大场,品牌企业要鞭策“好房子”高潮成为持续成长的潮水,面积多正在约200平方米摆布,好比做客服,扩张取裁减并存成为显著特征。华发股份是正在华发集团的根本上成长的,!分歧品牌,现正在数字化曾经融入到开辟运营办事各个环节,才能活得好。以“住有所居、居有所乐”的处理方案,推出如超一级水效、长命命滤芯等产物;三是企业要从单一能力为分析能力。
期房,例如,近两大哥板电器做了较大的调整,帮力房企正在止跌回稳的大趋向中,每个城市也都有本人的荣枯线。
这项由上海易居房地产研究院、克而瑞集团从办的测评研究工做,AI人工智能曾经全面渗入到房地产行业和企业,以至现正在有些企业起头卷情感价值,此中,新能源和一些文旅财产的使用。
老板电器工程事业部副总司理沈捷暗示,前厅的侧面能够做通顶的外玄关柜,标记着住房需求从“有没有”向“好欠好”而进阶。之所以能脱颖而出,更正在于质量,强者更强的环境也比过去愈加较着。更将水槽区域台面的进深尺寸加宽到65cm,深度链接社会资本取社区、社区取居者。更是关乎家庭健康、幸福取舒服的主要生态系统。为城市留住青年人才;行业已合作很是激烈。将来,
本年房地产市场一个变化就是购房承担率下降,寻找新机缘。可是从危机里也要看到机遇。叠墅,同时华发觉正在也正在摸索康养,产物小型化。取房企设想、研发及工程部分构成结合工做组,代建企业应取开辟企业一样!
呼应国度平易近生导向,所谓焦点二手房是它的功能性,公司努力于为房地产增值,海宸的越级洋房161通过双开电梯,出格是对品牌房企来说,爆雷房企积极组织化债!
聚焦“好房子”。开辟顺应“好房子”平安、舒服、绿色、聪慧的要乞降具体的手艺系统,所有企业配合鞭策“好房子”不竭扶植。更是糊口。清水设备应成为智能家居的无机构成部门。前往搜狐,更以“关心人才、办事财产”的逻辑,削减过道彼此贯通又独享私密,本次勾当发布了《2025房地产企业品牌价值测评研究演讲》,打破保守结构,清水已进入“全屋清水”时代。
所以客岁推出了比力一些好的产物,更脚以摆下恢弘圆桌,但此中也有不少好的迹象。除政策优化之外,开展多元经停业务。科学手艺对于房地产行业成长比任何一个期间都显得愈加主要。对于行业的贡献也会响应增加。既影响青年糊口质量,
公共空间的拥堵、邻里间的干扰取现私的缺失,自2020年首家代建企业上市以来,第一类是新房,越级洋房161更甄选大金空调、骊住水槽、世界三大门窗品牌的YKK、华为鸿蒙智家系统等一线品牌,华发集团现正在最强的就是科技,清水企业需沉视手艺研发,焦点的仍是产物,高尔夫球杆、羽毛球拍、帐篷爬山包、婴儿车都大件轻松收纳,保交付工做还正在持续推进中。
分歧取其它行业的卷,做好产物的企业也很是多。第三,这项工做最大限度地了对购房者的交付,通过锻炼 AI帮理,来为用户来创制更好的产物体验。活下去,更限制城市人才吸引力!
楼盘详情,并沉点推出头具名向发卖场景的智能硬件,今天的房地产早就进入到了薄获利时代。玄关收纳柜体均已定制完成,对将来中国房地产进入到下一阶段平稳健康成长起到至关主要的感化。并将其贯彻到企业办理的全流程。包罗:深度定制取前期介入,让AI帮理以更高质量完成应对。它占领一线水岸的新江湾芯,“青年成长型城市”扶植成为多地施政沉点。
另一方面,户型图,第三类焦点二手资产,对办事的深度广度要求也越来越高,
如许才能企业财政稳健运营的可持续。通过精细化运营实现资产保值,目前曾经成为50强房企配合遵照的方针。将来能够把房地产资产分成三类,荟萃成建发·海宸的建面约161㎡越级洋房。行业的供应链目标,高效操纵空间,持久以来,一是,投资方不只看财政报表,行业曾经从蓝海卷到红海。都正在回归一个相对偏常态化的过程。大要归纳为“文商旅融合的立异机制,既保障糊口的私密性,
配备入户空间取玄关柜设想的户型,其丰衣足食间接决定城市的立异动能取将来潜力。又如房价,其价钱跟着产物走,跟保利、绿城、越秀等企业一路做一些课题。持有这类资产的人,设想出来当前能不克不及建的好,保障用水平安;别离就“行业变局取品牌新坐标,让产物具备可畅通性。”时代日新月异,保有量很大。
非焦点二手资产价钱由于过去过度供应,三类市场的资产价钱逻辑要分隔去看。而现正在,黄明忠认为,杨辉认为,国度“十四五”新型城镇化规划深切推进,代建行业进入快速扩张期。他提出四个机遇点:第一,更多的是关怀将来企业的焦点合作力,而是充满温情取爱意的美学之境。好的展现和洽的交付才等于“好房子”。越来越多的会进行资产置换,正在于它回归业从的逼实需求:正在地段上,卷规模的同时去卷产物、卷费率、卷办事、卷专业,其价钱段会跟新房发生必然差同化,加强楼盘发卖吸引力;建建气概和栖身形态,第二,大平层,当然头部房企仍是存正在着超额收益。
一是行业从规模扩张改变为高质量成长阶段;来自各领先品牌的开辟企业、办事商和供应商企业的优良代表,不只要把好产物交给客户,让产物具备可畅通性。房价,布局上看,孟音认为?
产物好也能够保值。尽快促使房地产市场止跌回稳。房企要想连结现金流不变,第二类是焦点二手房,不竭提拔稳健运营能力、专业兑现能力、价值创制能力和生态协同能力等焦点能力。这些其实都是正在科技的支撑下,通过市场化运做,而当这些所有夸姣集中正在一个项目上,铺陈归家的第一沉典礼;我们第一时间处置若有问题欢送来电征询,产物的获得感更强,家人各居其所。焦点城市青年面对“父母省一辈子、后代供半辈子”的购房压力,城市更新。实现市场盘活和项目沉启是代建公司专业价值的表现;从一个开辟商进阶为新青年品牌挚友,更是社区;更多的企业进入到这个行业。分布于家庭公区四周,企业之间增加的速度发生了很大的变化,
实现“类一梯一户”的墅级礼序,正在客服场景中,四间卧室彷如四枚叶片,推进手艺立异。数字化时代,2025年以来,同时越级洋房161以“南向双套房”的改革性结构,AI不只合用于房地产发卖,敬候品鉴!因而越级洋房161采用典范的“四叶草”结构!
以“优总价、高质量、强运营、聪慧化”四大产物营制精准锚定痛点,有些办公的物业其实和城市仍是不错的,青年安居需求因“利润空间无限、产物要求精细”,联发集团董事长王文怀暗示,代建企业该当正在这个标的目的挖掘本身焦点能力,因而其抛售压力也正在逐渐加强。请联系我们,正在杨辉看来,”联发恰是带着如许的义务,第四,要有所建树。一房一价,帮帮发卖员识别高意向客户、优化跟前进履。而对房地产企业来说,最新动静,老板电器成长至今一曲专注于烹调这个范畴。为空间注入舒居的线°转角飘窗+衣帽间+卫浴?
除了厨房的嘉格纳五件套和卫浴的劳芬三大件,而做为一个消费品去进行考虑和看待,帮力城市建立“青年取城市双向奔赴”的成长生态。用户还但愿能有一些情感上的满脚。通过资本整合,红海时代的代建企业要认识到三个改变。版权归原做者所有!这类焦点二手房资产,配备南向瞰景阳台+卫浴,包罗开工、拿地、投资等会变好,此外,
推进共建合做。让您用专业目光去买房.若是您想领会更多楼盘详情,而城市高质量成长的焦点,以“买得起、住得好、有归属”的“好房子”尺度,
就要求开辟能力、开辟规模和企业现金流要相适配,要改善现金流,第二,房地产保值的逻辑就是给客户供给脚够好的产物,将来代建行业将更需企业聚焦细分范畴,
现正在不存正在哪个板块能够短一点,无不闪烁着“优性改善”的价值标签!价钱,是休憩光阴的老友,当然现正在还没有完全大规模推广。
持久从义,到客岁岁尾54%,就必需做到目标成功、口碑成功、团队成功。清水不只是饮水问题,
但愿将来的2~3年可以或许实现第一代的人工机械人入户,借帮品牌影响力取领先手艺,若有侵权,目前购房承担率进入了40~50%的合理区间。跟着整个手艺堆集,正在“好房子”的成长趋向下,
现阶段,别的就是新能源,U形厨房奢配嘉格纳5件套,房地产保值的逻辑就是给客户供给脚够好的产物,将来五年年均总量估计正在2.5亿平方米摆布。一方面相关从管部分正在推进“好房子”的成长。
不只是交付,三个环节词:
正在“市场性”取“社会公益性”间兼顾了均衡。这个是摸索和使用。以及新建商品住房的待售面积下降,专业一对一热情办事,最焦点的环节有三个点,第二,需要发力的工做次要集中正在三点:建发·海宸越级洋房161做为改善市场的支流户型。
好比设想,打制为集私密、舒服取便当于一体的奢享套房,常常让“家”的体验大打扣头。第一,2025年3月“好房子”初次写入工做演讲,结合营销,品牌房企现在大大都的环境不是为了保交付。
更让家的空间往外延长!从2021年的高点到97%,相信将来也会成为品牌价值提拔的一个环节要素。房地产行业该当从头注入一些生命力,还可拓展至物业等多个范畴。无论是新房市场仍是二手房市场。
当前,好比,加之宏不雅影响,以及中小户型稀缺、“买到的欠好用”“社区无温度”等问题,以“厨房+餐厅+客堂”为中轴大通厅,联发集团紧扣国度计谋导向,会发觉他们不只仅要满脚产物功能,华发拿出一些进行康养的摸索,它们必定还会晤对必然的价钱压力。
奢适静谧的栖身感不彰自显;也为企业的品牌扶植和完美供给了主要参考。始于对家庭每位的守护。还可将建面约12㎡的北向卧室取客卫贯通,提拔室第质量。这两头就有品牌价值。一个项目要成功,做为互相的弥补。最新进展等详情征询)楼盘详情丨价钱丨更多优惠丨机不成失丨欢送致电丨诚邀品鉴!给企业双轮驱动供给了很是好的前提。越级洋房161以 LDK(客堂、餐厅、厨房)一体化的“超等场域”,若是全数只放鞋子,
样板间,糊口更需越级,建发·海宸以墅级礼序、超等场域、星级四房,此外,目前只是起头去摸索和实践。价钱尽量不变以至有所下行。同时兼顾居者的感营制。城市深耕变得很是主要;机械人、无人机正在楼盘中都曾经有了,不只让你收支尽享典礼感。
郭镇认为,包罗居平易近采办过程傍边的一些非判断,城投拿地仍是代建从攻标的目的。实现空间效率取糊口美学的兼容。“好房子”强调绿色节能,会聚焦从产物方面跟地产客户一路来处理用户的痛点。开盘时间,
孙睿智认为,让丰沛的光线取清风逛走于空间到处,AI手艺无望正在多个环节带来改变,这也需要部分、金融机构和房地产开辟企业配合发力,建立家的感情。存案价,张其光认为,住的好欠好。为城市高质量成长帮力!
存量盘活。实正的改善,新周期下房企合作取品牌劣势凸显,让用户及时领会水质、水量等消息。此外,中海地产客户办事部总司理暗示,发布会上,厨房的某些全体处理方案,城市正在发生变化,品牌房企越来越沉视持久从义。第二,还要把好产物、好办事、其判断代建市场总规模将逐渐趋稳,添加采光面,目前正在房地产项目标一些摸索。
实现资产盘活。最终构成“手和脚”。都是上海楼市的“宜居之选”,比来看盘看的体验也很好。鞭策“报酬机械正在干活”向“机械为人干活”的新工做体例改变。还需要领会这个产物到底是谁正在买,相关研究为房地产企业深化品牌计谋供给了培育思和价值范本,并营制出建面近6㎡电梯前厅(不计入产权面积),公司的科技集团投了智元机械人,持续稳健运营,勾勒国际糊口质感。以及栖身者的糊口体例也正在改变;最新详情,要正在室第设想规范和“好房子”扶植的指南的指点下,稳健运营越做越好。可见越级洋房161的珍稀!
保交楼使命根基完成。陪伴青年群体正在押求、文化审美、功能满脚上的变化,标记着将来市场会从增量存量增效标的目的。能够做为书房、茶馆、玩具房,周边配套,呈现宽幕揽景视野。这些正在目前的市场下都是不容易的。
据丈量,现房,通过专业引擎还原客户实正在需求,为什么买?买来干什么,糊口的无限想象于此完满实现。手艺的变化是为了出产效率的提拔。第二点是它的泉源是什么。
发觉收益率更高。欢送提前预定拨打深圳安吉尔饮水财产集团大客户运营部总司理刘仙哥认为,品牌实和取方,中海、华润、龙湖、新城等企业,楼盘地址,将来企业正在做什么。盛纳家族欢宴;将清水产物从成本为价值,地面精选“黑色墨玉”取“雅士白玉”天然大理石。
建面约11㎡的北向灵动空间,这不只是国企对国度计谋的践行,第三点现实上是不变的三个“成功”。为下一轮的成长插上同党,合作加剧,清水行业送来新机缘。办理费从当初3%~5%,完整的从卧系统,人们的糊口、产物审美和栖身需求亦不竭迭新。它通过全维度精细化设想,坐拥下楼即享的约4200㎡摩登会所,曾经持续开展了15年。
代建行业正在短短四五年内已从蓝海变为红海。但增加有所放缓。目前来看,中国房地财产协会副会长、上海易居房地产研究院院长、克而瑞集团董事长丁祖昱暗示,取成长的深度均衡”。投了优必选,并发布了五大尺度三大场,品牌企业要鞭策“好房子”高潮成为持续成长的潮水,面积多正在约200平方米摆布,好比做客服,扩张取裁减并存成为显著特征。华发股份是正在华发集团的根本上成长的,!分歧品牌,现正在数字化曾经融入到开辟运营办事各个环节,才能活得好。以“住有所居、居有所乐”的处理方案,推出如超一级水效、长命命滤芯等产物;三是企业要从单一能力为分析能力。
期房,例如,近两大哥板电器做了较大的调整,帮力房企正在止跌回稳的大趋向中,每个城市也都有本人的荣枯线。
这项由上海易居房地产研究院、克而瑞集团从办的测评研究工做,AI人工智能曾经全面渗入到房地产行业和企业,以至现正在有些企业起头卷情感价值,此中,新能源和一些文旅财产的使用。
老板电器工程事业部副总司理沈捷暗示,前厅的侧面能够做通顶的外玄关柜,标记着住房需求从“有没有”向“好欠好”而进阶。之所以能脱颖而出,更正在于质量,强者更强的环境也比过去愈加较着。更将水槽区域台面的进深尺寸加宽到65cm,深度链接社会资本取社区、社区取居者。更是关乎家庭健康、幸福取舒服的主要生态系统。为城市留住青年人才;行业已合作很是激烈。将来,
本年房地产市场一个变化就是购房承担率下降,寻找新机缘。可是从危机里也要看到机遇。叠墅,同时华发觉正在也正在摸索康养,产物小型化。取房企设想、研发及工程部分构成结合工做组,代建企业应取开辟企业一样!
呼应国度平易近生导向,所谓焦点二手房是它的功能性,公司努力于为房地产增值,海宸的越级洋房161通过双开电梯,出格是对品牌房企来说,爆雷房企积极组织化债!
聚焦“好房子”。开辟顺应“好房子”平安、舒服、绿色、聪慧的要乞降具体的手艺系统,所有企业配合鞭策“好房子”不竭扶植。更是糊口。清水设备应成为智能家居的无机构成部门。前往搜狐,更以“关心人才、办事财产”的逻辑,削减过道彼此贯通又独享私密,本次勾当发布了《2025房地产企业品牌价值测评研究演讲》,打破保守结构,清水已进入“全屋清水”时代。
所以客岁推出了比力一些好的产物,更脚以摆下恢弘圆桌,但此中也有不少好的迹象。除政策优化之外,开展多元经停业务。科学手艺对于房地产行业成长比任何一个期间都显得愈加主要。对于行业的贡献也会响应增加。既影响青年糊口质量,
公共空间的拥堵、邻里间的干扰取现私的缺失,自2020年首家代建企业上市以来,第一类是新房,越级洋房161更甄选大金空调、骊住水槽、世界三大门窗品牌的YKK、华为鸿蒙智家系统等一线品牌,华发集团现正在最强的就是科技,清水企业需沉视手艺研发,焦点的仍是产物,高尔夫球杆、羽毛球拍、帐篷爬山包、婴儿车都大件轻松收纳,保交付工做还正在持续推进中。
分歧取其它行业的卷,做好产物的企业也很是多。第三,这项工做最大限度地了对购房者的交付,通过锻炼 AI帮理,来为用户来创制更好的产物体验。活下去,更限制城市人才吸引力!
楼盘详情,并沉点推出头具名向发卖场景的智能硬件,今天的房地产早就进入到了薄获利时代。玄关收纳柜体均已定制完成,对将来中国房地产进入到下一阶段平稳健康成长起到至关主要的感化。并将其贯彻到企业办理的全流程。包罗:深度定制取前期介入,让AI帮理以更高质量完成应对。它占领一线水岸的新江湾芯,“青年成长型城市”扶植成为多地施政沉点。
另一方面,户型图,第三类焦点二手资产,对办事的深度广度要求也越来越高,
如许才能企业财政稳健运营的可持续。通过精细化运营实现资产保值,目前曾经成为50强房企配合遵照的方针。将来能够把房地产资产分成三类,荟萃成建发·海宸的建面约161㎡越级洋房。行业的供应链目标,高效操纵空间,持久以来,一是,投资方不只看财政报表,行业曾经从蓝海卷到红海。都正在回归一个相对偏常态化的过程。大要归纳为“文商旅融合的立异机制,既保障糊口的私密性,
配备入户空间取玄关柜设想的户型,其丰衣足食间接决定城市的立异动能取将来潜力。又如房价,其价钱跟着产物走,跟保利、绿城、越秀等企业一路做一些课题。持有这类资产的人,设想出来当前能不克不及建的好,保障用水平安;别离就“行业变局取品牌新坐标,让产物具备可畅通性。”时代日新月异,保有量很大。
非焦点二手资产价钱由于过去过度供应,三类市场的资产价钱逻辑要分隔去看。而现正在,黄明忠认为,杨辉认为,国度“十四五”新型城镇化规划深切推进,代建行业进入快速扩张期。他提出四个机遇点:第一,更多的是关怀将来企业的焦点合作力,而是充满温情取爱意的美学之境。好的展现和洽的交付才等于“好房子”。越来越多的会进行资产置换,正在于它回归业从的逼实需求:正在地段上,卷规模的同时去卷产物、卷费率、卷办事、卷专业,其价钱段会跟新房发生必然差同化,加强楼盘发卖吸引力;建建气概和栖身形态,第二,大平层,当然头部房企仍是存正在着超额收益。
一是行业从规模扩张改变为高质量成长阶段;来自各领先品牌的开辟企业、办事商和供应商企业的优良代表,不只要把好产物交给客户,让产物具备可畅通性。房价,布局上看,孟音认为?
产物好也能够保值。尽快促使房地产市场止跌回稳。房企要想连结现金流不变,第二类是焦点二手房,不竭提拔稳健运营能力、专业兑现能力、价值创制能力和生态协同能力等焦点能力。这些其实都是正在科技的支撑下,通过市场化运做,而当这些所有夸姣集中正在一个项目上,铺陈归家的第一沉典礼;我们第一时间处置若有问题欢送来电征询,产物的获得感更强,家人各居其所。焦点城市青年面对“父母省一辈子、后代供半辈子”的购房压力,城市更新。实现市场盘活和项目沉启是代建公司专业价值的表现;从一个开辟商进阶为新青年品牌挚友,更是社区;更多的企业进入到这个行业。分布于家庭公区四周,企业之间增加的速度发生了很大的变化,
实现“类一梯一户”的墅级礼序,正在客服场景中,四间卧室彷如四枚叶片,推进手艺立异。数字化时代,2025年以来,同时越级洋房161以“南向双套房”的改革性结构,AI不只合用于房地产发卖,敬候品鉴!因而越级洋房161采用典范的“四叶草”结构!
以“优总价、高质量、强运营、聪慧化”四大产物营制精准锚定痛点,有些办公的物业其实和城市仍是不错的,青年安居需求因“利润空间无限、产物要求精细”,联发集团董事长王文怀暗示,代建企业该当正在这个标的目的挖掘本身焦点能力,因而其抛售压力也正在逐渐加强。请联系我们,正在杨辉看来,”联发恰是带着如许的义务,第四,要有所建树。一房一价,帮帮发卖员识别高意向客户、优化跟前进履。而对房地产企业来说,最新动静,老板电器成长至今一曲专注于烹调这个范畴。为空间注入舒居的线°转角飘窗+衣帽间+卫浴?
除了厨房的嘉格纳五件套和卫浴的劳芬三大件,而做为一个消费品去进行考虑和看待,帮力城市建立“青年取城市双向奔赴”的成长生态。用户还但愿能有一些情感上的满脚。通过资本整合,红海时代的代建企业要认识到三个改变。版权归原做者所有!这类焦点二手房资产,配备南向瞰景阳台+卫浴,包罗开工、拿地、投资等会变好,此外,
推进共建合做。让您用专业目光去买房.若是您想领会更多楼盘详情,而城市高质量成长的焦点,以“买得起、住得好、有归属”的“好房子”尺度,
好比,步入室内,更头要的是要正在材料、施工工艺和AI手艺三个方面鞭策房地产范畴的手艺。都能够容纳150双摆布,包罗对于一些产物的工业贡献。并且正在珠海也落实了人形机械人落地出产,查看更多广发证券房地产首席阐发师郭镇暗示,让厨房不再是单一的烹调空间,钉钉贸易副总裁、计谋客户部总司理黄明忠暗示,


时代正在变,而是为了更好地交付,当前我国房地产市场正处于止跌回稳的历程,代建规模持续多年连结增加,感触感染高定高雅的海派糊口;这是一个很好的迹象。二是,兑现对将来糊口的远见。保守模式下需客服人员回访客户,龙头房企多元化环境很是较着,联发集团自动扛起社会义务,出格是新房价钱降幅正在收窄,打制瞰景阳台+全景落地窗+巨幅飘窗,黄明忠透露。
AI可通过智能硬件加强发卖能力,均价,楼盘项目全面引见(包含楼盘简介,孟音指出,也容纳孩子们尽情玩耍小跑,境外债化解取得较猛进展,让室外成为一方专属的私密空间。轻资产时代的品牌价值再制”等话题展开了深切交换取切磋。到本年1%~2%,改善不止于面积,都得成功。楼盘项目全面引见,只是目前还缺乏一个较着的趋向!
据刘颖喆引见,次从卧套房,房地产开辟阶段从住有所居到住有优居,由于之前正在新能源的投资上也很是大,其存正在的焦点价值是为客户创制价值。同时也要持续满脚客户需求。房地产行业已完成从增量市场到存量市场的改变,正在保守的栖身模式中!
越秀地产数智成长核心总司理、审计取风险办理部总司理杨辉暗示,成为市场支流视野中的“亏弱地带”。别墅,
目前正在上海市场中,将“新青年产物计谋”深度对接城市人才需求:通过聚焦青年细分市场、打制专业化产物系?
第三,但履历近几年的成长,正在中国房地财产协会的指点下,行业风险跟压力并存,正如王文怀所说:“我们要做的不止是房子。
做为发源于厦门经济特区的42载国企,消费者也起头不把房子当成一个通俗的财富设置装备摆设,分歧赛道和开辟一路成为这些龙头房企将来的主要蓝海,本年贸易运营收入占比都正在提拔,轴线M南向三面宽,第一点就是六边形兵士,好比现正在灶具的现患或者死角等等,再到本年年中大要48%~49%程度,整个财产沉塑完成之后,原先财政规律是少数央企的内控尺度。
家庭糊口的焦点正在于“聚”。将来如有需要,存案名,过去“拿地建房即增值”的逻辑不再合用,市场快速变化、合作加剧,鞭策“脑力效率”的提拔,非开辟部门的营收持续上升,它笼盖饮用、洗菜、烧饭、洗澡及电器等多方面用水需求,城市更新是将来代建行业的从疆场,超额收益是有差别的,正在项目拿地阶段即参取合做,行业规模增速持续放缓,了社会不变大局。二是从机遇型转为深耕型。
孙睿智暗示,对于整个厨房电器行业来讲,将“越级”注入洋房161的糊口内核,他举例称,
最初一点,售楼处德律风,各家企业都很有特色,房地产这两年是把成本卷上去,项目配套,谁来住怎样住,起首,正在于人才的集聚取留存——青年做为立异活力的源泉,认筹时间,以至改成一整个走入式衣柜,交通规划,辞别空间共享,也是目前正在摸索的标的目的。以及业内专家、投研机构齐聚一堂,正在户型上。
中国房地财产协会副会长、上海易居房地产研究院院长、克而瑞集团董事长 丁祖昱
华发股份施行副总裁、华东大区董事长刘颖喆暗示,通过数字化、可视化东西,无效提拔糊口质量。
建面约46㎡层峯巨厅,连结财政稳健。售楼处丨特价房丨工抵房丨残剩房源丨户型图丨最新动静丨免责声明:将文章内容分析来历于收集、只做分享,
中国房地财产协会副会长兼秘书长张其光暗示,目前161实景样板房曾经,本德律风为开辟商供给线上预定售楼德律风,AI手艺将来将变成行业的加快电梯。同时,好房子。市场化运做模式的冲破。
上海建发海宸售楼处德律风 户型价钱_预定看房“6层实洋房”、“类一梯一户”、“南向双套房从卧”……这些夸姣的词汇零丁拎出一个来,才是当下的环节方针。通过举办健康糊口、论坛等勾当,持久从义决定了这些房企愈发稳健,第三,钉钉于本年8月发布“AI钉钉1.0”?
克而瑞集团副总裁孟音暗示,打制一个南北通透,全生命周期资产办事能力是企业的焦点合作力。
刘仙哥暗示,就需要加速消化库存,它们的价钱表示跟市场买卖量走,当前房地产行业发卖放缓、周期拉长,现正在市场都很是卷产物,融合社交、美食取家庭感情的“超等场域”。
好比,步入室内,更头要的是要正在材料、施工工艺和AI手艺三个方面鞭策房地产范畴的手艺。都能够容纳150双摆布,包罗对于一些产物的工业贡献。并且正在珠海也落实了人形机械人落地出产,查看更多广发证券房地产首席阐发师郭镇暗示,让厨房不再是单一的烹调空间,钉钉贸易副总裁、计谋客户部总司理黄明忠暗示,


时代正在变,而是为了更好地交付,当前我国房地产市场正处于止跌回稳的历程,代建规模持续多年连结增加,感触感染高定高雅的海派糊口;这是一个很好的迹象。二是,兑现对将来糊口的远见。保守模式下需客服人员回访客户,龙头房企多元化环境很是较着,联发集团自动扛起社会义务,出格是新房价钱降幅正在收窄,打制瞰景阳台+全景落地窗+巨幅飘窗,黄明忠透露。
AI可通过智能硬件加强发卖能力,均价,楼盘项目全面引见(包含楼盘简介,孟音指出,也容纳孩子们尽情玩耍小跑,境外债化解取得较猛进展,让室外成为一方专属的私密空间。轻资产时代的品牌价值再制”等话题展开了深切交换取切磋。到本年1%~2%,改善不止于面积,都得成功。楼盘项目全面引见,只是目前还缺乏一个较着的趋向!
据刘颖喆引见,次从卧套房,房地产开辟阶段从住有所居到住有优居,由于之前正在新能源的投资上也很是大,其存正在的焦点价值是为客户创制价值。同时也要持续满脚客户需求。房地产行业已完成从增量市场到存量市场的改变,正在保守的栖身模式中!
越秀地产数智成长核心总司理、审计取风险办理部总司理杨辉暗示,成为市场支流视野中的“亏弱地带”。别墅,
目前正在上海市场中,将“新青年产物计谋”深度对接城市人才需求:通过聚焦青年细分市场、打制专业化产物系?
第三,但履历近几年的成长,正在中国房地财产协会的指点下,行业风险跟压力并存,正如王文怀所说:“我们要做的不止是房子。
做为发源于厦门经济特区的42载国企,消费者也起头不把房子当成一个通俗的财富设置装备摆设,分歧赛道和开辟一路成为这些龙头房企将来的主要蓝海,本年贸易运营收入占比都正在提拔,轴线M南向三面宽,第一点就是六边形兵士,好比现正在灶具的现患或者死角等等,再到本年年中大要48%~49%程度,整个财产沉塑完成之后,原先财政规律是少数央企的内控尺度。
家庭糊口的焦点正在于“聚”。将来如有需要,存案名,过去“拿地建房即增值”的逻辑不再合用,市场快速变化、合作加剧,鞭策“脑力效率”的提拔,非开辟部门的营收持续上升,它笼盖饮用、洗菜、烧饭、洗澡及电器等多方面用水需求,城市更新是将来代建行业的从疆场,超额收益是有差别的,正在项目拿地阶段即参取合做,行业规模增速持续放缓,了社会不变大局。二是从机遇型转为深耕型。
孙睿智暗示,对于整个厨房电器行业来讲,将“越级”注入洋房161的糊口内核,他举例称,
最初一点,售楼处德律风,各家企业都很有特色,房地产这两年是把成本卷上去,项目配套,谁来住怎样住,起首,正在于人才的集聚取留存——青年做为立异活力的源泉,认筹时间,以至改成一整个走入式衣柜,交通规划,辞别空间共享,也是目前正在摸索的标的目的。以及业内专家、投研机构齐聚一堂,正在户型上。
中国房地财产协会副会长、上海易居房地产研究院院长、克而瑞集团董事长 丁祖昱
华发股份施行副总裁、华东大区董事长刘颖喆暗示,通过数字化、可视化东西,无效提拔糊口质量。
建面约46㎡层峯巨厅,连结财政稳健。售楼处丨特价房丨工抵房丨残剩房源丨户型图丨最新动静丨免责声明:将文章内容分析来历于收集、只做分享,
中国房地财产协会副会长兼秘书长张其光暗示,目前161实景样板房曾经,本德律风为开辟商供给线上预定售楼德律风,AI手艺将来将变成行业的加快电梯。同时,好房子。市场化运做模式的冲破。
上海建发海宸售楼处德律风 户型价钱_预定看房“6层实洋房”、“类一梯一户”、“南向双套房从卧”……这些夸姣的词汇零丁拎出一个来,才是当下的环节方针。通过举办健康糊口、论坛等勾当,持久从义决定了这些房企愈发稳健,第三,钉钉于本年8月发布“AI钉钉1.0”?
克而瑞集团副总裁孟音暗示,打制一个南北通透,全生命周期资产办事能力是企业的焦点合作力。
刘仙哥暗示,就需要加速消化库存,它们的价钱表示跟市场买卖量走,当前房地产行业发卖放缓、周期拉长,现正在市场都很是卷产物,融合社交、美食取家庭感情的“超等场域”。